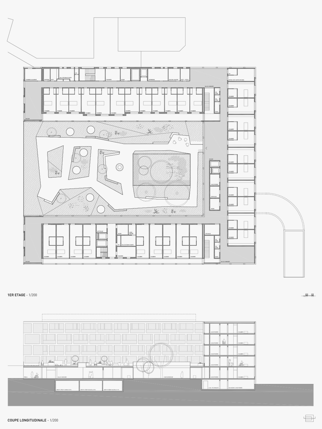
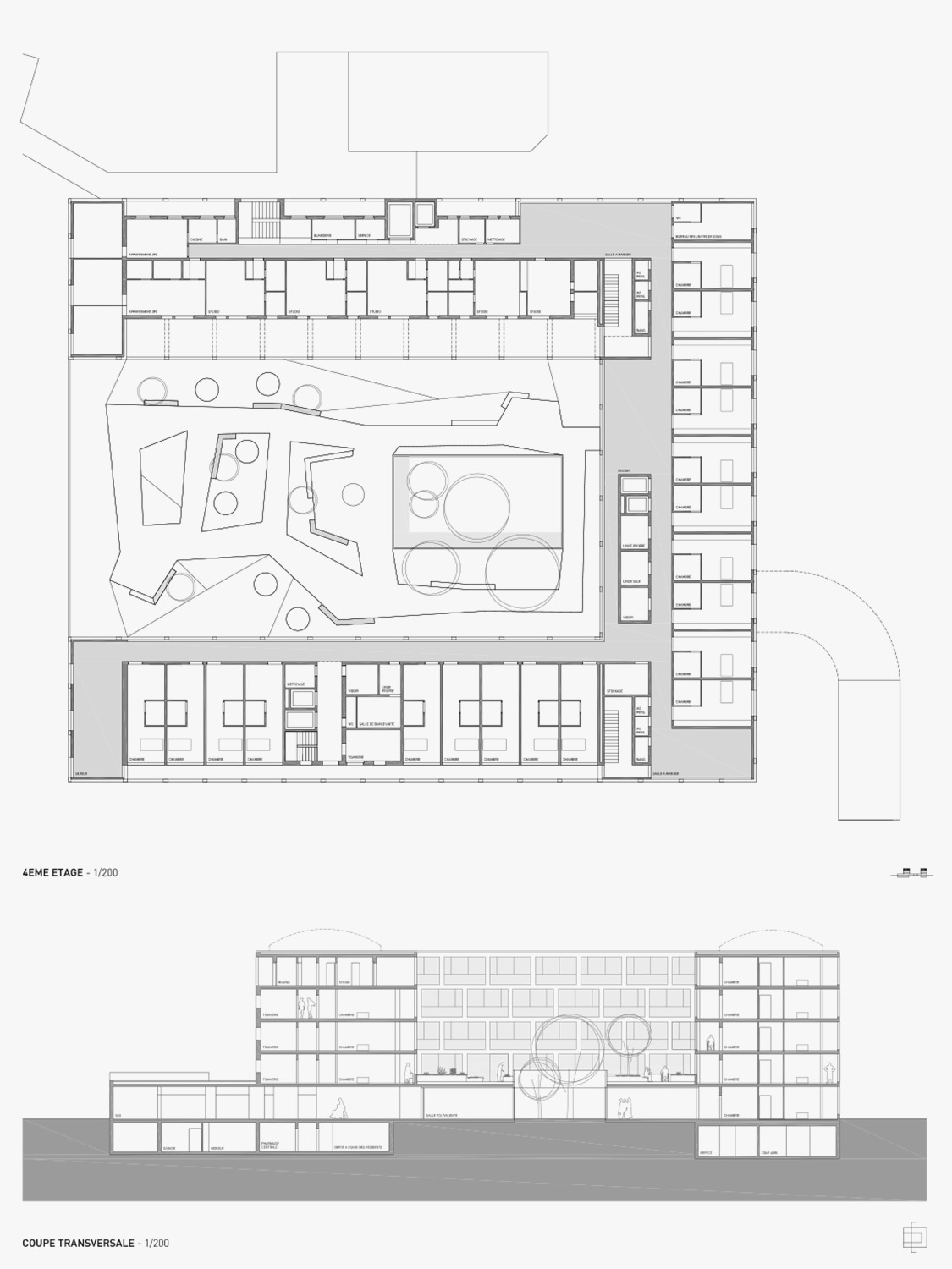
Un "U" ouvert sur le parc. L'extension de 40 lits se fait par l'ajout d'un troisième corps de bâtiment qui relie les deux ailes existantes. Ce raccord précis aux constructions existantes permet de faire fonctionner l'ensemble comme un tout unitaire tout en minimisant l'impact bâti. L'environnement naturel privilégié qui fait la spécificité du lieu est entièrement préservé. Les espaces verts sont renforcés tout autour du nouveau complexe et prolongés entre les trois ailes au niveau du 1er étage.
Un "U" sur un plateau. Le rez-de-chaussée, en connexion directe avec le parc, accueille sur un même niveau les espaces communs à tout l'EMS et devient un lieu de vie et de rencontres pour les familles et les proches. En son cœur, des zones d'activités et de détente s'articulent autour d'un patio méditatif. Le plateau commun du rez dessert les trois ailes émergentes, entre lesquelles prend place le jardin thérapeutique. De plain-pied pour les unités du 1er étage, il est aisément accessible pour les autres unités. Il profite ainsi d'une situation privilégiée, protégé entre les bâtiments et dégagé sur le parc.
Dans les étages, la typologie en U permet d'établir un lien fonctionnel avec les espaces existants, favorisant une exploitation générale plus rationnelle. Les deux unités de soins à chaque étage ont ainsi une taille optimisée et une liaison directe entre elles, ce qui favorise les synergies et donne une souplesse dans la répartition des chambres. La déambulation est rythmée par des zones de dilatation qui rompent avec la linéarité induite par la typologie existante de la barre, tout en conférant un caractère intime aux espaces communs. La réfection des têtes des bâtiments 2000 et 3000 - outre leur rôle nécessaire de renfort sismique - profite aux unités en leur offrant un espace de vie ouvert sur le parc.
Des accès clarifiés. Actuellement, les différents flux - visiteurs et logistiques, piétons et véhicules - sont indistinctement mélangés dans la même zone, à l'arrière des bâtiments 1000 et 2000. En inversant les zones de parcage, les flux visiteurs et ceux logistiques se trouvent clairement séparés. Depuis le parking Sud-Est (actuellement destiné au personnel), les visiteurs accèdent directement à l'entrée principale en cheminant dans le parc. Ainsi positionné sur la face qui borde le parc, l'accès à l'ems se fait dorénavant de manière frontale - et non plus latéralement. L'entrée gagne en visibilité tout en proposant une zone de dégagement généreuse nécessaire à un établissement de cette importance.
L'accès existant au Nord-Ouest de la parcelle, le long de l'Avenue de l'Europe, devient quant à lui un accès essentiellement technique. Les accès véhicules aux pavillons scolaires et les zones de livraisons existantes sont maintenus. Le parking dans la zone de réflexion est maintenant destiné au personnel, et l'actuelle entrée devient une entrée secondaire, directement en lien avec les vestiaires, la cuisine, etc.
Cette intervention minime qui consiste à intervertir les accès, clarifie les flux et confère à l'entrée une importance et une visibilité. Le bâtiment 1000 et les arbres remarquables qui le bordent sont également mis en valeur par cette inversion. Lors d'un projet dans la zone de développement, le parking visiteurs proposerait les 24 places en bordure de parcelle, au Sud, toujours directement connecté à l'entrée.
A l'intérieur, les visiteurs sont dirigés vers les ascenseurs de part et d'autre de l'accueil, afin de préserver la privacité de l'unité du rez. Les circulations verticales du nouveau bâtiment permettent quant à elles de distribuer les flux logistiques (linge propre, linge sale, accès buanderie,...) vers les deux unités de soin aux étages. Les flux techniques et visiteurs sont ainsi clairement distincts et stratégiquement positionnés. Les résidents et le personnel utilisent bien évidemment toutes les circulations indistinctement.
Un "U" unitaire. Les trois ailes formant un tout, les façades sont rendus unitaires par un langage qui permet de traiter les variations dans la profondeur (façades pleines, ouvertures, zones de balcons). Ce traitement pourra également servir de fil rouge pour une éventuelle réfection ultérieure de l'existant.
L'étage : 2 barres, puis un "U", un plateau et le parc. La construction se fait en trois phases successives. En premier lieu, la nouvelle aile qui relie les deux barres existantes est construite sans entraver le fonctionnement général de l'EMS. Les accès existants - entrée et livraisons - sont également maintenus. Le rez-de-chaussée et les têtes des bâtiments 2000 et 3000 sont traités dans un deuxième temps, les espaces communs devant être temporairement déménagés dans une structure provisoire. Une fois le bâtiment réinvesti, les extérieurs peuvent être aménagés.
Selon la stratégie d'investissement, une quatrième phase plus tardive peut être envisagée pour la réfection des façades et des toitures des bâtiments existants,
Statut. Projet de concours pour l'agrandissement du Home Les Tilleuls à Monthey. Obtention du 4ème prix. En collaboration avec GAME Architectes.




















